Beschrijving
Vrijstaand huis in het centrum van Liempde
Dit goed onderhouden vrijstaande huis biedt de perfecte combinatie van dorpsgevoel en ruimte. Met een groot perceel van 510 m², een ruime vrijstaande garage (46 m²) en drie slaapkamers is dit een ideale gezinswoning. De woning heeft een warme uitstraling dankzij de houten vloer in de woonkamer, een gezellige houthaard en veel natuurlijk licht. Middels het plaatsen van een vaste trap is het mogelijk om de tweede verdieping bij de woning te betrekken waardoor het woonoppervlak 150 m² wordt.
Kenmerken:
• Woonoppervlakte: ± 130 m² (eenvoudig uit te breiden naar 150 m²)
• Vrijstaande garage: 46 m²
• Perceel: 510 m²
• Inhoud: 556 m³
• Bouwjaar: 1967
• Energielabel: F
Bijzonderheden
• Ruim en groen: Groot perceel met veel privacy en mogelijkheden
• Gezellig karakter: Houten vloer en houthaard
• Goede basis: HR++ beglazing en recente CV-ketel (2013)
• Parkeerruimte: Grote garage met elektrische roldeur en parkeerplaats voor 2 auto's op de oprit
• Ligging: Midden in het centrum van Liempde, nabij voorzieningen
Indeling
Begane grond:
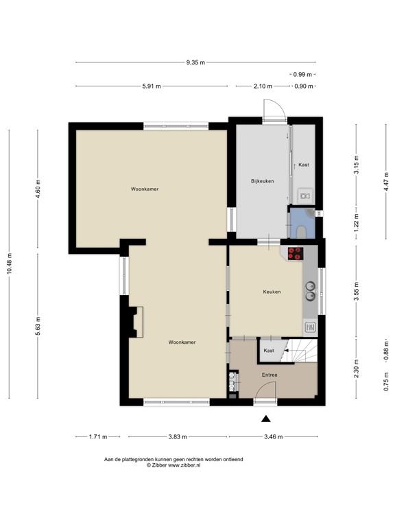
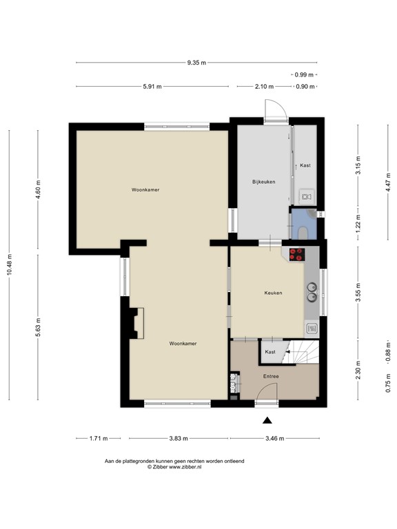
Bij binnenkomst betreedt u de entreehal met toegang tot de meterkast, keuken en trap naar boven. De gezellige en ruime woonkamer straalt warmte uit dankzij de houtkachel en de houten vloer. De woonkamer is aan de achterzijde uitgebouwd en door de ramen aan de voor-, zij- en achterkant valt er volop natuurlijk licht binnen. De keuken is tijdloos ingericht en voorzien van basis-inbouwapparatuur en een trapkast. Vanuit de keuken heeft u toegang tot de bijkeuken, waar u een vaste kast, was-en droogaansluiting, een toilet en een deur naar de achtertuin vindt.
Eerste verdieping:
De overloop biedt toegang tot 3 slaapkamers, de badkamer en de vlizotrap naar de tweede verdieping.
Slaapkamer 1: ± 12 m², deze slaapkamer is gelegen aan de achterzijde van de woning.
Slaapkamer 2 ± 12 m², deze slaapkamer is gelegen aan de achterzijde van de woning.
Slaapkamer 3 ± 9 m², deze slaapkamer is gelegen aan de voorzijde van de woning.
De badkamer is gelegen aan de voorzijde van de woning en is voorzien van een douche, toilet en wastafel.
Tweede verdieping:
De bergzolder is bereikbaar via een vlizotrap en biedt volop ruimte voor opslag, tevens treft u hier ook de cv-installatie (uit 2013). Deze verdieping is, middels het plaatsen van een vaste trap en dakramen, eenvoudig bij de woning te betrekken zodat u 150 m² woonoppervlak kunt realiseren.
Tuin:
De zonnige tuin op het zuidwesten is groen ingericht en biedt veel privacy. Daarnaast beschikt u over een ruime garage met elektrische roldeur (46m2), ideaal voor parkeren, opslag of klus projecten. De garage is voorzien van water, verwarming en een ruime vliering voor extra bergruimte. Voor de garage treft u nog een oprit voor twee auto's achter elkaar.
Ligging:
Dit huis ligt midden in het gezellige dorp Liempde, waar u alle dagelijkse voorzieningen binnen handbereik heeft. Ondanks de centrale ligging geniet u hier van de rust en privacy die een vrijstaande woning biedt. De grotere steden Den Bosch, Eindhoven en Tilburg zijn binnen 15 minuten bereikbaar.
Interesse?
Dit huis biedt een zeldzame kans om vrijstaand te wonen in het hart van Liempde. Met wat persoonlijke aandacht maakt u er gemakkelijk uw droomhuis van.
Deze informatie is met zorg samengesteld, doch Eline Makelaardij aanvaardt geen aansprakelijkheid voor onjuistheden en onvolledigheden van de opgenomen informatie, noch kan aan de vermelde informatie enig recht worden ontleend.
Let op:
- Bij het opstellen van de koopovereenkomst wordt de gebruikelijke bankgarantie/waarborgsom gesteld van 10% van de koopsom.
- Bij het opstellen van de koopovereenkomst wordt een ouderdomsclausule opgenomen en een niet zelf-bewoningsclausule (verkoper heeft er zelf niet gewoond)
- Het is mogelijk om een financieringsvoorbehoud op te nemen tot de vraagprijs.
Plattegronden
Oude Dijk 37, Eline Makelaardij, Plattegrond begane grond met tuin.jpg
Oude Dijk 37, Eline Makelaardij, Plattegrond begane grond.jpg
Oude Dijk 37, Eline Makelaardij, Plattegrond 1e verdieping.jpg
Oude Dijk 37, Eline Makelaardij, Plattegrond zolder.jpg
Oude Dijk 37, Eline Makelaardij, Plattegrond garage.jpg
Oude Dijk 37, Eline Makelaardij, Plattegrond garage vliering.jpg
Oude Dijk 37, Eline Makelaardij, Plattegrond overkapping.jpg