| Prijs | € 799.500,- k.k. |
| Type object | Woonhuis, eengezinswoning, vrijstaande woning |
| Perceeloppervlakte | 459 m² |
| Woonoppervlakte | 210 m² |
| Aanvaarding | In overleg |
| Status | Verkocht onder voorbehoud |
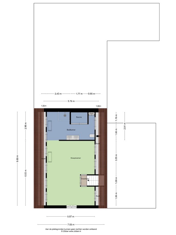
Vrijstaande woning in hartje Liempde Midden in het pittoreske Liempde vindt u deze bijzondere vrijstaande woning, waar historische charme hand in hand gaat met modern comfort. De woning, oorspronkelijk gebouwd in 1945 en volledig gerenoveerd in 2010, biedt een combinatie van karakteristieke details en eigentijdse voorzieningen. Met een royaal woonoppervlakte van 210 m² en een unieke indeling is dit huis perfect voor wie ruimte zoekt. De woning beschikt over twee badkamers, waarvan één op de begane grond, waardoor leven en slapen op één niveau mogelijk is. De prachtige leistenen vloer met vloerverwarming in de woonkamer, slaapkamer en serre zorgt voor comfort in elk seizoen. Een van de meest bijzondere ruimtes is de voormalige showroom van 45 m², die zich uitstekend leent als werkruimte, atelier of speelkamer. Deze lichte, open ruimte met zichtbare balken en openslaande deuren naar de tuin biedt eindeloze mogelijkheden. De woning is niet alleen sfeervol, maar ook energiezuinig: met 27 zonnepanelen, hoogwaardige HR+ en HR++ beglazing en een energielabel B geniet u van duurzaam wooncomfort. Hoogtepunten: • Volledig gerenoveerd in 2010 en 2012, met nieuwe kap en pannen • 27 zonnepanelen voor lagere energiekosten • Slaapkamer en badkamer op de begane grond • Twee badkamers, waarvan één met sauna • Sfeervolle houtkachels in woonkamer en eetkamer • Vloerverwarming op de begane grond • Unieke showroom/werkkamer van 45 m² Kenmerken: • Woonoppervlakte: ± 210 m² • Overige inpandige ruimte: 34 m² (garage) • Externe bergruimte: 7 m² (berging) • Inhoud woning: 904 m³ • Perceel: 459 m² • Bouwjaar: 1945 (volledig gerenoveerd in 2010/2012) • Energielabel: B Bekijk deze woning op: www.keefheuvel5.nl Een rondleiding door de woning Bij binnenkomst betreedt u een hal die toegang geeft tot de woonkamer en de trap naar boven. De woonkamer valt direct op door de warme houten balken aan het plafond en de prachtige leistenen vloer met vloerverwarming. Hier staat ook een gezellige houtkachel voor sfeervolle avonden. De keuken, in landelijke stijl, is voorzien van een Esse-fornuis, een Quooker en een granieten werkblad. Via de keuken komt u in de lichte eetkamer, die met openslaande deuren uitkomt op de tuin. In de bijkeuken vindt u praktische voorzieningen zoals wasmachine-aansluitingen en extra bergruimte. Op de begane grond bevindt zich ook een ruime slaapkamer en een moderne badkamer met inloopdouche. De voormalige showroom van 45 m² is een echte blikvanger, met hoge plafonds, zichtbare balken en openslaande deuren naar buiten. Op de eerste verdieping wacht een enorme slaapkamer van 35 m² met inbouwkasten en een luxe badkamer met sauna. Deze verdieping biedt bovendien de mogelijkheid om een extra slaapkamer te creëren. Genieten van buiten De woning heeft een prachtig aangelegde tuin met een overdekt terras, een pizzaoven en een houten vlonder. Het is een heerlijke plek om te ontspannen, omringd door borders en groen. De achtertuin is voorzien van een houten berging en tevens is er een inpandige berging bereikbaar vanuit de oprit. De oprit biedt plaats aan twee auto’s naast elkaar. Waarom deze woning? Dit is een unieke kans op een vrijstaand huis vol karakter, midden in het gezellige Liempde. Of u nu zoekt naar een gezinswoning, een plek om aan huis te werken of een toekomstbestendige woning – deze woning biedt het allemaal. Benieuwd geworden? Plan snel een bezichtiging en laat u verrassen door de mogelijkheden! Deze informatie is met zorg samengesteld, doch Eline Makelaardij aanvaardt geen aansprakelijkheid voor onjuistheden en onvolledigheden van de opgenomen informatie, noch kan aan de vermelde informatie enig recht worden ontleend. Let op: - Bij het opstellen van de koopovereenkomst wordt de gebruikelijke bankgarantie/waarborgsom gesteld van 10% van de koopsom. - Bij het opstellen van de koopovereenkomst wordt een ouderdomsclausule opgenomen. - Het is mogelijk om een financieringsvoorbehoud op te nemen tot de vraagprijs.
| Referentienummer | 00332 |
| Vraagprijs | € 799.500,- k.k. |
| Elektra | € 100,- |
| Gas | € 100,- |
| Water | € 27,- |
| Inrichting | Niet gestoffeerd |
| Inrichting | Niet gemeubileerd |
| Status | Verkocht onder voorbehoud |
| Aanvaarding | In overleg |
| Aangeboden sinds | Donderdag 26 februari 2026 |
| Laatste wijziging | Dinsdag 24 maart 2026 |
| Type object | Woonhuis, eengezinswoning, vrijstaande woning |
| Soort bouw | Bestaande bouw |
| Bouwperiode | 1945 |
| Dakbedekking | Dakpannen Metaal |
| Type dak | Zadeldak |
| Isolatievormen | Dakisolatie Dubbel glas Vloerisolatie |
| Perceeloppervlakte | 459 m² |
| Woonoppervlakte | 210 m² |
| Inhoud | 904 m³ |
| Oppervlakte overige inpandige ruimten | 34 m² |
| Oppervlakte externe bergruimte | 7 m² |
| Oppervlakte gebouwgebonden buitenruimte | 29 m² |
| Aantal bouwlagen | 2 |
| Aantal kamers | 5 (waarvan 2 slaapkamers) |
| Aantal badkamers | 2 (en 1 apart toilet) |
| Ligging | Aan rustige weg In woonwijk Nabij school |
| Type | Voortuin |
| Oriëntering | Zuidoost |
| Staat | Prachtig aangelegd |
| Tuin 2 - Type | Zijtuin |
| Tuin 2 - Oriëntering | Noorden |
| Tuin 2 - Heeft een achterom | Ja |
| Tuin 2 - Staat | Prachtig aangelegd |
| Tuin 3 - Type | Achtertuin |
| Tuin 3 - Hoofdtuin | Ja |
| Tuin 3 - Oriëntering | Noord west |
| Tuin 3 - Heeft een achterom | Ja |
| Tuin 3 - Staat | Prachtig aangelegd |
| Energielabel | B |
| CV ketel | Remeha Avanta |
| Warmtebron | Gas |
| Bouwjaar | 2009 |
| Combiketel | Ja |
| Eigendom | Eigendom |
| Aantal parkeerplaatsen | 3 |
| Aantal overdekte parkeerplaatsen | 1 |
| Warm water | CV-ketel |
| Verwarmingssysteem | Airconditioning Centrale verwarming Houtkachel Vloerverwarming (gedeeltelijk) |
| Badkamervoorzieningen Badkamer 1 | Douche Dubbele wastafel |
| Badkamervoorzieningen Badkamer 2 | Douche Sauna Toilet Wastafel |
| Parkeergelegenheid | Aangebouwde houten garage |
| Heeft airco | Ja |
| Heeft een rookkanaal | Ja |
| Tuin aanwezig | Ja |
| Heeft een garage | Ja |
| Heeft rolluiken | Ja |
| Heeft een sauna | Ja |
| Heeft schuur/berging | Ja |
| Heeft zonnepanelen | Ja |
| Kadastrale aanduiding | Liempde B 3319 |
| Perceeloppervlakte | 427 m² |
| Omvang | Geheel perceel |
| Eigendomsituatie | Eigen grond |
| Kadastrale aanduiding | Liempde B 3320 |
| Perceeloppervlakte | 32 m² |
| Omvang | Geheel perceel |
| Eigendomsituatie | Eigen grond |