Beschrijving
Ruime twee-onder-een-kapwoning met garage in het sfeervolle Esch
In het rustige en karakteristieke dorp Esch ligt deze ruime twee-onder-een-kapwoning uit 1970 – een woning die ruimte, comfort en mogelijkheden perfect met elkaar combineert. Met een solide basis en moderne voorzieningen zoals een eigentijdse keuken en badkamer, is dit een ideale plek voor wie op zoek is naar een fijn gezinshuis met toekomstpotentie.
Wat deze woning extra bijzonder maakt, is de uitbouw aan de voorzijde. Hierdoor beschikt u over een royale ontvangstruimte én een opvallend ruime woonkamer, waar licht en leefruimte samenkomen en direct een warm welkom bieden.
Met drie volwaardige slaapkamers, een aparte wasruimte en diverse praktische bijgebouwen is dit een woning die zich moeiteloos aanpast aan uw woonwensen – nu én in de toekomst.
Het perceel van 286 m² beschikt over een fijne achtertuin op het noordwesten, waar u kunt genieten van de middag- en avondzon. Of u nu wilt ontspannen, tuinieren of gezellig buiten wilt zitten onder de overkapping: hier kan het allemaal. De combinatie van een garage, carport, overkapping en meerdere bergingen zorgt bovendien voor verrassend veel praktische ruimte.
Kenmerken:
• Woonoppervlakte: ± 109 m²
• Overig inpandige ruimte: ± 19 m²
• Gebouw gebonden buitenruimte: ± 32 m²
• Externe bergruimte: ± 30 m²
• Inhoud woning: ± 452 m³
• Perceel: 286 m²
• Bouwjaar: 1970
• Energielabel: D
Bekijk deze woning ook op: www.lochtenberg13.nl
Bijzonderheden:
• Uitgebouwd aan de voorzijde met royale ontvangstruimte
• 3 slaapkamers en aparte wasruimte
• Moderne keuken en badkamer
• Sfeervolle woonkamer met houthaard
• Ruime tuin op het noordwesten met veel privacy
• Garage, carport en oprit voor meerdere auto’s
• Houten berging met veranda/overkapping en extra stenen berging
• Zolder met uitbreidingsmogelijkheden
• Volop kansen voor verdere verduurzaming en modernisering
Indeling
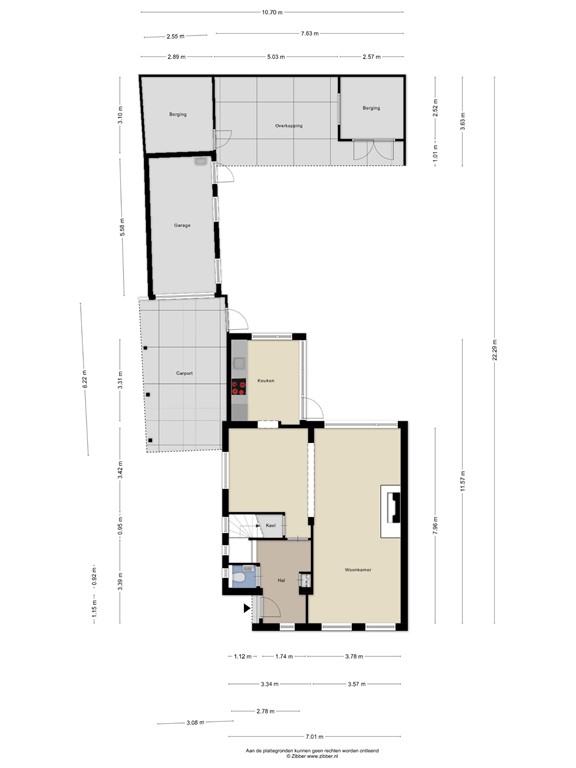
Begane grond:
Via de entree betreedt u de ruime en lichte ontvangstruimte met meterkast, toilet en trapopgang naar de eerste verdieping. Vanuit hier loopt u door naar de woonkamer, waar de houthaard direct zorgt voor sfeer en gezelligheid.
De woonkamer biedt volop indelingsmogelijkheden en vormt samen met de aangrenzende keuken het hart van de woning. De moderne leefkeuken is praktisch ingericht en voorzien van diverse inbouwapparatuur. Vanuit hier heeft u direct toegang tot de tuin, waardoor binnen en buiten naadloos in elkaar overlopen.
Eerste verdieping:
De overloop geeft toegang tot drie slaapkamers van goed formaat. Daarnaast bevindt zich hier een aparte wasruimte – een fijne en praktische toevoeging voor het dagelijks gemak.
De badkamer is compleet en verzorgd uitgevoerd, met een ligbad, douche, toilet en wastafel: alles wat u nodig heeft voor comfort en ontspanning.
• Slaapkamer 1: ± 11 m², gelegen aan de voorzijde van de woning.
• Slaapkamer 2: ± 12 m², gelegen aan de achterzijde van de woning en voorzien van een airconditioning en een wastafel.
• Slaapkamer 3: ± 7 m², gelegen aan de achterzijde van de woning, vanuit deze kamer heeft u toegang tot het balkon.
Tweede verdieping:
Via een vlizotrap bereikt u de zolderverdieping. Deze ruimte wordt momenteel gebruikt als bergzolder, maar biedt volop mogelijkheden om bij de woning te betrekken en extra woonruimte te realiseren.
Tuin:
De achtertuin is gelegen op het noordwesten en biedt een fijne balans tussen zon en schaduw. Of u nu wilt genieten van lange zomeravonden onder de overkapping of behoefte heeft aan extra bergruimte: met een houten berging, stenen berging en garage met carport is hier aan alles gedacht.
De ruime oprit maakt het geheel compleet en biedt plaats aan meerdere auto’s op eigen terrein.
Bent u geïnteresseerd?
Deze woning is perfect voor wie op zoek is naar ruimte, sfeer en de mogelijkheid om een huis geheel naar eigen wens verder te verbeteren en te verduurzamen.
Esch biedt een rustige en prettige woonomgeving, met een gunstige ligging ten opzichte van voorzieningen en uitvalswegen.
Plan snel een bezichtiging en ervaar zelf de ruimte, mogelijkheden en het fijne woongevoel van deze woning! ✨
Deze informatie is met zorg samengesteld, doch Eline Makelaardij aanvaardt geen aansprakelijkheid voor onjuistheden en onvolledigheden van de opgenomen informatie, noch kan aan de vermelde informatie enig recht worden ontleend.
Let op:
- Bij het opstellen van de koopovereenkomst wordt de gebruikelijke bankgarantie/waarborgsom gesteld van 10% van de koopsom.
- Bij het opstellen van de koopovereenkomst wordt een ouderdomsclausule opgenomen en niet zelfbewonings-clausule (verkopers hebben er zelf niet gewoond)
- Het is mogelijk om een financieringsvoorbehoud op te nemen tot de vraagprijs.
Plattegronden
Lochtenberg 13, Eline Makelaardij, Plattegrond begane grond met tuin.jpg
Lochtenberg 13, Eline Makelaardij, Plattegrond begane grond.jpg
Lochtenberg 13, Eline Makelaardij, Plattegrond 1e verdieping.jpg
Lochtenberg 13, Eline Makelaardij, Plattegrond 2e verdieping.jpg