Beschrijving
Prachtig ruime twee-onder-een-kapwoning aan de rand van kerkdorp Esch
Aan de rand van het sfeervolle kerkdorp Esch, in een kindvriendelijke woonomgeving, ligt deze stijlvolle en volledig verbouwde twee-onder-een-kapwoning. De woning is de afgelopen jaren grondig gemoderniseerd en uitstekend onderhouden. Zo is het dak nageïsoleerd en voorzien van nieuwe dakpannen, beschikt de woning over HR++ beglazing in houten kozijnen en is het interieur strak en eigentijds afgewerkt.
Met een grote open woonkeuken met kookeiland, vier ruime slaapkamers, een vrijstaande garage en een ruime, sfeervolle tuin, is dit een ideale gezinswoning voor wie comfort, sfeer én ruimte zoekt. De combinatie van volledig gestucte wanden en plafonds, een donkere keramische tegelvloer (80x80 cm) met vloerverwarming en een stijlvolle elektrische designhaard maakt deze woning tot een echte eyecatcher.
De royale aanbouw aan de achterzijde met dubbel openslaande deuren zorgt voor extra leefruimte en veel lichtinval. Aansluitend bevindt zich de praktische bijkeuken met grote kastenwand, die via een fraaie staallook schuifdeur in verbinding staat met de keuken. De volledig geïsoleerde vrijstaande garage met zolder biedt volop mogelijkheden, zoals een kantoor aan huis, hobbyruimte of praktische bergruimte.
Met vier slaapkamers, een moderne badkamer en airconditioning in zowel de woonkamer als de hoofdslaapkamer, is comfortabel wonen hier vanzelfsprekend
Kenmerken
• Woonoppervlakte: ± 139 m²
• Externe bergruimte (garage plus extra berging): ± 34 m²
• Inhoud woning: ± 490 m³
• Perceeloppervlakte: ± 282 m²
• Bouwjaar: 1968
• Energielabel: B
Bekijk deze woning ook op de unieke website: www.kollenberg13.nl
Bijzonderheden
• Ruim perceel met eigen garage en royale oprit
• 4 ruime slaapkamers en moderne badkamer
• Goed geïsoleerd en voorzien van HR++ beglazing
• Elektrische designhaard en 2x airconditioning
• Moderne open keuken met kookeiland
• Volledig gemoderniseerd en instapklaar
Indeling
Begane grond
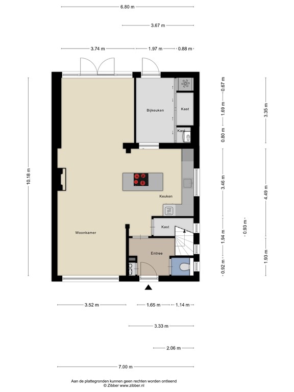
Via de lichte entreehal betreedt u de woning, met toegang tot de keuken, meterkast, toiletruimte en trap naar boven. De moderne houtlook keuken straalt warmte en luxe uit en is compleet uitgerust met een inductiekookplaat met geïntegreerde afzuiging, Quooker, combi oven-magnetron en overige inbouwapparatuur. De stijlvolle paneeldeuren geven de ruimte een chique uitstraling.
Onder de trap bevindt zich een praktische bergkast. De gehele begane grond is voorzien van een strakke keramische tegelvloer (80x80 cm) met vloerverwarming als hoofdverwarming. De lichte woonkamer beschikt over een grote raampartij aan de voorzijde en aan de achterzijde een dubbele openslaande deur met zonnescreen. De elektrische designhaard en airconditioning zorgen hier voor extra comfort.
Via een staallook schuifdeur bereikt u vanuit de keuken de bijkeuken. Deze is voorzien van een grote kastenwand, de cv-ketel (Nefit, 2019), was- en droogaansluitingen en een deur naar de achtertuin.
Eerste verdieping
De overloop geeft toegang tot drie slaapkamers en de badkamer. Alle slaapkamers zijn voorzien van een strakke laminaatvloer.
• Slaapkamer 1: ± 11 m², gelegen aan de voorzijde
• Slaapkamer 2: ± 12 m², gelegen aan de achterzijde, voorzien van een grote vaste kast, airconditioning en rolluik
• Slaapkamer 3: ± 8 m², gelegen aan de achterzijde, voorzien van rolluiken
De moderne badkamer is uitgevoerd met een inloopdouche, dubbele wastafel en toilet.
Tweede verdieping
Via een vaste trap bereikt u de fraaie open zolderkamer van maar liefst 26 m². Over de volledige breedte aan de achterzijde is deze verdieping voorzien van een dakkapel. Onder de schuine kant is een praktische kastruimte gerealiseerd. De ruimte is afgewerkt met vloerbedekking en uitermate geschikt als vierde slaapkamer, werk- of hobbyruimte.
Tuin
De zonnige achtertuin, gelegen op zuidoost, is sfeervol en strak aangelegd met een grote grasmat, borders en achterin een royale overkapping — een heerlijke plek om te ontspannen of te genieten van lange zomeravonden.
Via de tuin is de garage bereikbaar. Aan de voorzijde kan de auto worden gestald en aan de achterzijde bevindt zich extra bergruimte. De garage is voorzien van een elektrische garagedeur. Daarnaast beschikt de woning over een grote oprit met ruimte voor meerdere auto’s.
Bent u geïnteresseerd?
Deze fantastische woning staat klaar voor haar nieuwe bewoners. Een plek waar comfort, stijl en ruimte samenkomen — ideaal voor gezinnen of iedereen die prettig wil wonen in het landelijke en rustige kerkdorp Esch, met scholen, winkels en voorzieningen nabij. Bovendien gunstig gelegen tussen ’s-Hertogenbosch, Eindhoven en Tilburg.
Plan snel een bezichtiging en ontdek zelf hoe fijn wonen hier is!
Deze informatie is met zorg samengesteld, doch Eline Makelaardij aanvaardt geen aansprakelijkheid voor onjuistheden en onvolledigheden van de opgenomen informatie, noch kan aan de vermelde informatie enig recht worden ontleend.
Let op:
- Bij het opstellen van de koopovereenkomst wordt de gebruikelijke bankgarantie/waarborgsom gesteld van 10% van de koopsom.
- Bij het opstellen van de koopovereenkomst wordt een ouderdomsclausule opgenomen.
- Het is mogelijk om een financieringsvoorbehoud op te nemen tot de vraagprijs.
Plattegronden
Kollenberg 13, Eline Makelaardij, Plattegrond begane grond met tuin.jpg
Kollenberg 13, Eline Makelaardij, Plattegrond begane grond.jpg
Kollenberg 13, Eline Makelaardij, Plattegrond 1e verdieping.jpg
Kollenberg 13, Eline Makelaardij, Plattegrond 2e verdieping.jpg
Kollenberg 13, Eline Makelaardij, Plattegrond garage:berging.jpg
Kollenberg 13, Eline Makelaardij, Plattegrond zolder garage.jpg
Kollenberg 13, Eline Makelaardij, Plattegrond overkapping.jpg