Beschrijving
Prachtig herenhuis in hartje Boxtel
Dit stijlvolle herenhuis in het gezellige centrum van Boxtel biedt ruimte, luxe en comfort voor het hele gezin. Met vier slaapkamers, twee badkamers, een groot souterrain én een zonnig dakterras is dit de ideale woning voor wie van ruimte en gemak houdt. Dankzij de uitstekende isolatie, 12 zonnepanelen en energielabel A geniet u van modern wooncomfort, terwijl u midden in het bruisende centrum woont.
Kenmerken:
• Woonoppervlakte: ± 213 m²
• Parkeerplaats: 36 m²
• Inhoud: 780 m³
• Bouwjaar: 2006
• Energielabel: A
• VvE-kosten: €171,- p.m.
Bekijk deze woning op: www.prinshendrikstraat34c.nl
Bijzonderheden
• Ruimte genoeg: 4 slaapkamers, 2 badkamers en veel bergruimte
• Energiezuinig: 12 zonnepanelen, HR++ beglazing, A-label
• Extra ruimtes: Groot souterrain (veel mogelijkheden) en een inpandige parkeerplaats (2 auto's achter elkaar)
• Buitenleven: Zonnige stadstuin op het noord-westen en een dakterras
• Moderne afwerking: Visgraat PVC-vloer op begane grond, open keuken
Indeling
Begane grond:
Bij binnenkomst betreedt u de hal met toegang tot de meterkast, toilet, trap naar boven en souterrain, woonkamer en keuken. De lichte woonkamer heeft een grote glazen achterwand met openslaande deuren naar de tuin. De moderne L-vormige keuken is voorzien van een 5-pits gaskookplaat en diverse inbouwapparatuur.
Eerste verdieping:
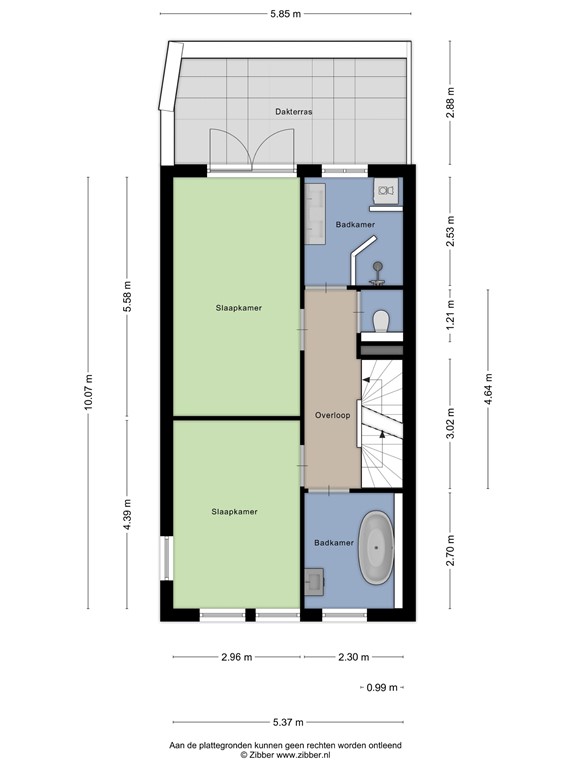
• Slaapkamer 1: +/- 13 m², deze slaapkamer is gelegen aan de voorzijde en is voorzien van een laminaatvloer
• Slaapkamer 2: +/- 17 m², deze slaapkamer is gelegen aan de achterzijde en is voorzien van een laminaatvloer en openslaande deuren naar het dakterras
• Badkamer 1: deze moderne badkamer is voorzien van een ligbad en wastafel
• Badkamer 2: deze badkamer is voorzien van een Inloopdouche, wastafel en wasmachine-aansluiting
• Separaat toilet
Tweede verdieping:
• Slaapkamer 3: +/- 20 m², deze slaapkamer is gelegen aan de achterzijde en is voorzien van een dakkapel en de technische ruimte.
• Slaapkamer 4: +/- 18 m², deze slaapkamer is gelegen aan de voorzijde en is voorzien van een dakkapel. Vanuit deze kamer bereikt u middels een vaste trap de zolder.
Derde verdieping (zolder):
De ruime zolderverdieping is geschikt als slaapkamer of voor opslag.
Souterrain:
Grote multifunctionele ruimte (chill-kamer, werkplek, opslag), van hieruit heeft u toegang tot de privé-parkeerplaats in de parkeerkelder (o.b.v. appartementsrecht).
Tuin:
De onderhoudsvrije stadstuin op het noord-westen is perfect voor zomerse dagen. Met bestrating, klimop en houten schuttingen straalt de tuin gezelligheid uit.
Waarom deze woning?
• Ruim en praktisch: Ideaal voor gezinnen, met veel bergruimte en extra souterrain
• Energiezuinig: Lage energiekosten door zonnepanelen en A-label
• Centrale ligging: Alles binnen handbereik, van scholen tot winkels en het treinstation is op loopafstand
• Buitenplezier: Zonnige tuin en dakterras voor ultiem genieten
Geïnteresseerd?
Dit herenhuis is een zeldzame kans in Boxtel. Plan snel een bezichtiging en ervaar het zelf!
Deze informatie is met zorg samengesteld, doch Eline Makelaardij aanvaardt geen aansprakelijkheid voor onjuistheden en onvolledigheden van de opgenomen informatie, noch kan aan de vermelde informatie enig recht worden ontleend.
Let op:
- Bij het opstellen van de koopovereenkomst wordt de gebruikelijke bankgarantie/waarborgsom gesteld van 10% van de koopsom.
- Het is mogelijk om een financieringsvoorbehoud op te nemen tot de vraagprijs.
Plattegronden
Prins Hendrikstraat 34c, Eline Makelaardij, Plattegrond begane grond met tuin.jpg
Prins Hendrikstraat 34c, Eline Makelaardij plattegrond begane grond.jpg
Prins Hendrikstraat 34c, Eline Makelaardij plattegrond 1e verdieping.jpg
Prins Hendrikstraat 34c, Eline Makelaardij plattegrond 2e verdieping.jpg
Prins Hendrikstraat 34c, Eline Makelaardij plattegrond 3e verdieping slaapkamer.jpg
Prins Hendrikstraat 34c, Eline Makelaardij plattegrond kelder.jpg