Beschrijving
Instapklare tussenwoning in kindvriendelijke wijk Oost te Boxtel
Midden in de populaire en kindvriendelijke wijk Oost ligt deze instapklare en verrassend ruime tussenwoning met eigen parkeerplaats. De woning is modern afgewerkt en volledig voorbereid op comfortabel en energiezuinig wonen. Met zonnepanelen, airco’s, vier slaapkamers en een frisse, speelse afwerking is dit een ideale gezinswoning, maar ook zeer geschikt als comfortabel startershuis.
Dankzij de gunstige ligging bereikt u binnen enkele minuten de uitvalswegen richting Eindhoven, ’s-Hertogenbosch en Tilburg. Alle dagelijkse voorzieningen zoals scholen, winkels en sportfaciliteiten bevinden zich op loop- of fietsafstand.
Kenmerken
• Woonoppervlakte: ca. 115 m²
• Perceeloppervlakte: ca. 164 m²
• Inhoud: ca. 408 m³
• Bouwjaar: 1973
• Energielabel: B
Bekijk deze woning ook op de unieke website: depellenwever42.nl
Bijzonderheden
• Ruim wonen met 4 slaapkamers
• Moderne keuken en badkamer
• Twee slaapkamers én de woonkamer/keuken zijn voorzien van airco
• 10 zonnepanelen
• Begane grond en eerste verdieping voorzien van kunststof kozijnen met HR++ glas
• Instapklaar en verzorgd afgewerkt
Indeling
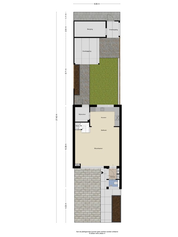
Begane grond
Via de entreehal betreedt u de woning. Hier bevinden zich het toilet, de meterkast en de toegang tot de woonkamer. Via een stijlvolle deur komt u in de woon-/eetkamer.
De woonkamer is licht en strak afgewerkt met gestucte wanden en een moderne pvc-vloer. De grote raampartij zorgt voor veel natuurlijke lichtinval en een prettige sfeer. Onder de trap bevindt zich een praktische bergkast.
Aan de achterzijde ligt de moderne open keuken, voorzien van diverse inbouwapparatuur waaronder een groot 6-pits gasfornuis met oven, vaatwasser en koelkast. Aansluitend bevindt zich de praktische bijkeuken/berging met doorgang naar de achtertuin.
Eerste verdieping
De overloop geeft toegang tot drie ruime slaapkamers en de moderne badkamer.
• Slaapkamer 1: ca. 7 m², gelegen aan de voorzijde, voorzien van airco, strak gestucte wanden en laminaatvloer
• Slaapkamer 2: ca. 13 m², gelegen aan de voorzijde, voorzien van airco, strak gestucte wanden en laminaatvloer
• Slaapkamer 3: ca. 11 m², gelegen aan de achterzijde, voorzien strak gestucte wanden en laminaatvloer
De moderne badkamer is uitgerust met een inloopdouche, ligbad, wastafel en toilet.
Tweede verdieping
Via een vaste trap bereikt u de overloop met toegang tot de voor-/bergzolder. Hier bevinden zich de cv-ketel, de was- en droogaansluiting en een dakraam.
Vanuit de voorzolder bereikt u de vierde slaapkamer:
• Slaapkamer 4: ca. 15 m², voorzien van een dakraam en wastafel
Tuin
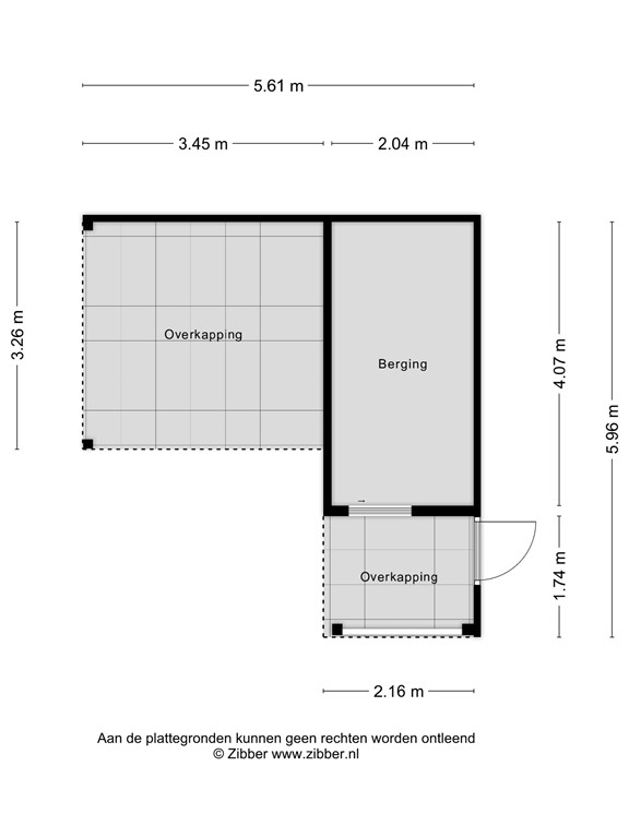
De moderne achtertuin is verzorgd aangelegd en voorzien van een grote plantenbak en een grasmat. Het overdekte terras, direct grenzend aan de berging, maakt het mogelijk om op elk moment van de dag van het buitenleven te genieten. Daarnaast beschikt de tuin over een achterom.
Waarom deze woning?
• Moderne en instapklare afwerking
• Klaar voor de toekomst met zonnepanelen en airco’s
• Gelegen in een kindvriendelijke wijk
• Centrale ligging nabij alle voorzieningen
Geïnteresseerd?
Deze woning vraagt om een bezichtiging. Plan snel een afspraak en ervaar zelf het comfort, de ruimte en de fijne ligging van deze woning!
Deze informatie is met zorg samengesteld, doch Eline Makelaardij aanvaardt geen aansprakelijkheid voor onjuistheden en onvolledigheden van de opgenomen informatie, noch kan aan de vermelde informatie enig recht worden ontleend.
Let op:
- Bij het opstellen van de koopovereenkomst wordt de gebruikelijke bankgarantie/waarborgsom gesteld van 10% van de koopsom.
- Bij het opstellen van de koopovereenkomst wordt een ouderdomsclausule opgenomen.
- Het is mogelijk om een financieringsvoorbehoud op te nemen tot de vraagprijs.
Plattegronden
De Pellenwever 42, Eline Makelaardij, Plattegrond begane grond met tuin.jpg
De Pellenwever 42, Eline Makelaardij, Plattegrond begane grond.jpg
De Pellenwever 42, Eline Makelaardij, Plattegrond 1e verdieping.jpg
De Pellenwever 42, Eline Makelaardij, Plattegrond 2e verdieping.jpg
De Pellenwever 42, Eline Makelaardij, Plattegrond berging.jpg