Beschrijving
Midden in de populaire en kindvriendelijke wijk Oost ligt deze verrassend ruime tussenwoning. Met dubbele dakkapellen, vijf slaapkamers en een moderne, speelse afwerking is dit de ideale gezinswoning of het perfecte startershuis.
Dankzij de uitstekende ligging bent u binnen enkele minuten op de snelweg richting Eindhoven, 's-Hertogenbosch of Tilburg, terwijl alle dagelijkse voorzieningen zoals scholen, winkels en sportfaciliteiten zich op fietsafstand bevinden.
Kenmerken:
• Woonoppervlak: ca. 127 m²
• Perceel: ca. 141 m²
• Inhoud: ca. 451 m³
• Bouwjaar: 1976
• Energielabel: D
Bekijk deze woning op: debeukums68.nl
Bijzonderheden:
• Maar liefst 5 slaapkamers
• Grote dakkapellen aan beide zijden van de woning
• Moderne afwerking met gestucte wanden en een gietvloer
Indeling
Begane grond
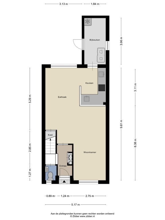
Bij binnenkomst betreedt u de entreehal met toegang tot het toilet, de meterkast, de trap naar boven en de woonkamer. Via een stijlvolle staal-lookdeur bereikt u de woon-/eetkamer.
De woonkamer valt direct op door de strakke afwerking met gestucte wanden en de moderne gietvloer. Grote raampartijen aan zowel de voor- als achterzijde zorgen voor voldoende natuurlijk licht en een prettige sfeer.
Aan de achterzijde bevindt zich de open hoekkeuken in landelijke stijl, uitgerust met diverse inbouwapparatuur, waaronder een inductiekookplaat, oven, vaatwasser en Quooker. Aansluitend ligt de praktische bijkeuken/berging, met aansluitingen voor wasmachine en droger en extra bergruimte.
Eerste verdieping:
De overloop geeft toegang tot drie ruime slaapkamers en de badkamer.
• Slaapkamer 1: ca. 10 m², gelegen aan de achterzijde, voorzien van een dakkapel en strak gestucte wanden.
• Slaapkamer 2: ca. 15 m², gelegen aan de achterzijde, voorzien van een dakkapel en strak gestucte wanden.
• Slaapkamer 3: ca. 13 m², gelegen aan de voorzijde, met strak gestucte wanden en een doorgang naar de tweede verdieping
De moderne badkamer is voorzien van een douche, wastafel en toilet.
Tweede verdieping
Via een vaste trap bereikt u de overloop met toegang tot nog twee slaapkamers:
• Slaapkamer 4: ca. 7 m², voorzien van een dakkapel en praktische schuifkast onder de schuine kap
• Slaapkamer 5: ca. 7 m², eveneens met dakkapel en schuifkast onder de schuine kap
.
Tuin
De speels aangelegde achtertuin beschikt over diverse terrassen en een achterom, waardoor u op elk moment van de dag kunt genieten van zon en buitenleven.
Waarom deze woning?
• Ruime woning met 5 slaapkamers
• Gelegen in een kindvriendelijke wijk
Geïnteresseerd?
Deze woning vraagt om een bezichtiging! Plan snel een afspraak en ontdek zelf de mogelijkheden.
Deze informatie is met zorg samengesteld, doch Eline Makelaardij aanvaardt geen aansprakelijkheid voor onjuistheden en onvolledigheden van de opgenomen informatie, noch kan aan de vermelde informatie enig recht worden ontleend.
Let op:
- Bij het opstellen van de koopovereenkomst wordt de gebruikelijke bankgarantie/waarborgsom gesteld van 10% van de koopsom.
- Bij het opstellen van de koopovereenkomst wordt een ouderdomsclausule opgenomen.
- Het is mogelijk om een financieringsvoorbehoud op te nemen tot de vraagprijs.
Plattegronden
De Beukums 68, Eline Makelaardij, plattegrond begane grond met tuin.jpg
De Beukums 68, Eline Makelaardij, plattegrond begane grond.jpg
De Beukums 68, Eline Makelaardij, plattegrond 1e verdieping.jpg
De Beukums 68, Eline Makelaardij, plattegrond 2e verdieping.jpg