Beschrijving
Prachtig ruime twee-onder-een-kap woning in Boxtel-Oost
Aan de rand van het gezellige centrum van Boxtel, in de kindvriendelijke wijk Oost, ligt deze royale en deels verduurzaamde twee-onder-een-kapwoning. Dankzij de serre aan de achterzijde en de brede dakkapel op de tweede verdieping geniet u van extra licht en ruimte.
De afgelopen jaren is de woning deels verduurzaamd: de muren en het dak zijn na-geïsoleerd, er zijn 9 zonnepanelen geplaatst en in 2021 is een nieuwe cv-ketel geïnstalleerd. Aan de voorzijde zijn de kozijnen vervangen door kunststof met HR++ glas, terwijl de achterzijde voorzien is van houten kozijnen met dubbele beglazing.
De inpandige garage is omgebouwd tot leefruimte en biedt volop mogelijkheden zoals een kantoorruimte, speelkamer of als extra bergruimte. Op de brede oprit is plaats voor meerdere auto’s. De serre is momenteel in gebruik als tuinkamer, maar kan met enkele aanpassingen eenvoudig bij de woonkamer of keuken worden betrokken. Met vier slaapkamers, een complete badkamer en een praktische was-/bergzolder is dit een ideale woning voor gezinnen of iedereen die van ruimte houdt.
Kenmerken:
• Woonoppervlakte: ± 163 m²
• Externe berging: 7 m²
• Gebouw gebonden buitenruimte: 11 m²
• Inhoud woning: 577 m³
• Perceel: 299 m²
• Bouwjaar: 1977
• Energielabel: C
Bekijk deze woning ook op de unieke website: www.albinonistraat102.nl
Bijzonderheden:
• Ruim perceel met eigen oprit
• 4 royale slaapkamers + praktische berg-/waszolder
• Deels geïsoleerd, 9 zonnepanelen en 2x airco
• Gunstige ligging vlakbij centrum en scholen
• Voorzijde voorzien van HR++ glas, achterzijde dubbele beglazing
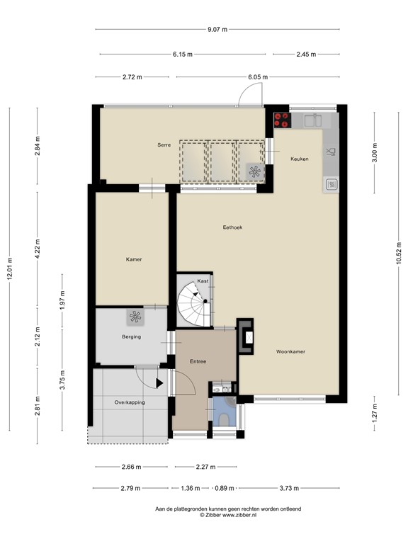
Indeling
Begane grond:
Bij binnenkomst treft u de ruime hal met toegang tot de eetkamer, de meterkast, het toilet en de bergruimte (voorheen garage). De woonkamer valt direct op door de fijne lichtinval, de royale indeling en de sfeervolle houthaard. Grote raampartijen aan de voor- en achterzijde versterken het gevoel van ruimte. Het trappengat bevindt zich achter dubbele deuren in de woonkamer.
Aan de achterzijde ligt de open keuken in hoekopstelling, voorzien van diverse inbouwapparatuur waaronder een 4-pits keramische kookplaat en vaatwasser. Vanuit de keuken bereikt u de serre: een verlengstuk van de woonkamer met veel licht, een airco en directe toegang tot de tuin. Vanuit de serre bereikt u tevens de achterzijde van de voormalige garage, die is opgesplitst in een werk-/speelkamer en een bergruimte.
Eerste verdieping:
De overloop geeft toegang tot drie ruime slaapkamers en de badkamer. Deze laatste is uitgerust met een ligbad met douchescherm, een dubbele wastafel en een toilet. De slaapkamers zijn afgewerkt met een laminaatvloer en één van de kamers beschikt over een airco.
• Slaapkamer 1: (± 13 m²) gelegen aan de voorzijde, voorzien van airco
• Slaapkamer 2: (± 13 m²) gelegen aan de achterzijde
• Slaapkamer 3: (± 8 m²) gelegen aan de achterzijde
Tweede verdieping:
Via een vaste trap bereikt u de waszolder met aansluitingen voor wasmachine en droger. Hier bevinden zich ook de cv-ketel (2021) en de omvormer voor de zonnepanelen. Een dakraam en zijraam zorgen voor extra licht. Hier bevindt zich ook de vierde slaapkamer met dakkapel aan de achterzijde. De gehele verdieping is voorzien van een laminaatvloer.
Tuin:
• Achtertuin (noordwest): sfeervolle tuin met diverse terrassen, borders en grote tegels. Achterin de tuin staat een houten tuinhuis.
• Voortuin: ruime oprit voor twee auto’s en een overstek bij de voordeur.
Bent u geïnteresseerd?
Deze ruime woning met veel potentie biedt alles voor een comfortabel leven in het bruisende Boxtel, met alle voorzieningen op loopafstand. Ideaal voor gezinnen, maar ook perfect voor wie centraal én rustig wil wonen. Boxtel ligt bovendien gunstig tussen Den Bosch, Eindhoven en Tilburg, met uitstekende scholen en winkels om de hoek.
Plan snel een bezichtiging en ontdek zelf hoe fijn wonen hier is!
Deze informatie is met zorg samengesteld, doch Eline Makelaardij aanvaardt geen aansprakelijkheid voor onjuistheden en onvolledigheden van de opgenomen informatie, noch kan aan de vermelde informatie enig recht worden ontleend.
Let op:
- Bij het opstellen van de koopovereenkomst wordt de gebruikelijke bankgarantie/waarborgsom gesteld van 10% van de koopsom.
- Bij het opstellen van de koopovereenkomst wordt een ouderdomsclausule opgenomen en een niet zelf-bewoningsclausule (verkoper heeft er zelf niet gewoond)
- Het is mogelijk om een financieringsvoorbehoud op te nemen tot de vraagprijs.
Plattegronden
Albinonistraat 102, Eline Makelaardij, plattegrond begane grond met tuin.jpg
Albinonistraat 102, Eline Makelaardij, plattegrond begane grond.jpg
Albinonistraat 102, Eline Makelaardij, plattegrond 1e verdieping.jpg
Albinonistraat 102, Eline Makelaardij, plattegrond 2e verdieping.jpg
Albinonistraat 102, Eline Makelaardij, plattegrond berging.jpg